
В последние годы символ семейного очага — камин — вновь на пике популярности. Ведь так приятно вечером посидеть у него и понаблюдать за пляшущими языками пламени. Камин создает в помещении уютную и комфортную атмосферу. Недаром его называют душой гостиной.
Жителям многоквартирных домов, к сожалению, по ряду причин настоящий камин недоступен, но это вовсе не означает, что следует отказаться от мечты украсить свое жилье этим эффектным элементом интерьера. В этом материале мы расскажем вам о том, как изготовить угловой камин из гипсокартона. Мастер-класс от опытных специалистов поможет вам разобраться со всеми тонкостями создания такой конструкции.
Камин в интерьере квартиры
Для начала предлагаем вам рассмотреть, какими свойствами обладает такая конструкция, и на какие типы можно разделить такие устройства. Все камины можно классифицировать по виду используемого топлива.
- Газовые. При горении не выделяется копоть, помещение прогревается быстро. Но для сооружения такой конструкцию необходимо разрешение, к тому же, подключить его непросто.
- Электрические – наиболее востребованные устройства. Для их установки не требуется специального разрешения. Их без проблем можно приобрести в строительных супермаркетах.
- Биокамины – оригинальные и экологически чистые устройства, которые вписываются в любой интерьер. К их недостаткам можно отнести лишь довольно высокую стоимость топлива.
- Ну и, конечно, классический вариант, отапливаемый дровами, который невозможно установить в многоквартирном доме.
Угловой камин из гипсокартона
Самым востребованным и популярным отделочным материалом на современном строительном рынке, из которого можно сделать почти любую конструкцию, по праву считается гипсокартон. Из него делают потолки, перегородки, элементы декора. Сделать из гипсокартона своими руками угловой фальш-камин сможет любой человек, который имеет представление о том, как пользоваться строительным инструментом. Конечно, такая конструкция не конкурирует с настоящим камином, согревающим дом горением дров, но может стать прекрасным украшением современной квартиры. Кроме того, если установить в него электрический обогреватель с имитацией огня, то камин получится совсем как настоящий.
Технология изготовления
Чтобы изготовить угловой камин из гипсокартона своими руками, все работы необходимо разделить на несколько этапов. Начинаются они с подготовки проекта. На этом этапе необходимо определиться с некоторыми важными факторами:
- расположением будущей конструкции;
- размерами углового камина из гипсокатона;
- конструкцией и дизайном портала.
Начнем с выбора места. Камин обычно устанавливают в гостиной. В просторном помещении его можно расположить в центре одной из стен. Если же зал невелик (что чаще бывает в современных квартирах) целесообразнее сделать декоративный угловой камин из гипсокартона своими руками.
Как правило, дизайнеры объединяют камин с зоной телевизора. Иными словами, эти предметы располагают рядом, например, панель можно установить над камином. Совсем необязательно строго придерживаться этого правила. При желании вы можете расположить камин и телевизор и на противоположных стенах.
Сделанный своими руками угловой камин из гипсокартона, фото которого вы можете увидеть в статье, может стать не только декоративным, но и функциональным элементом, если в него вмонтировать электрообогреватель. А можно и оборудовать ящичками или полочками для хранения различных мелочей.
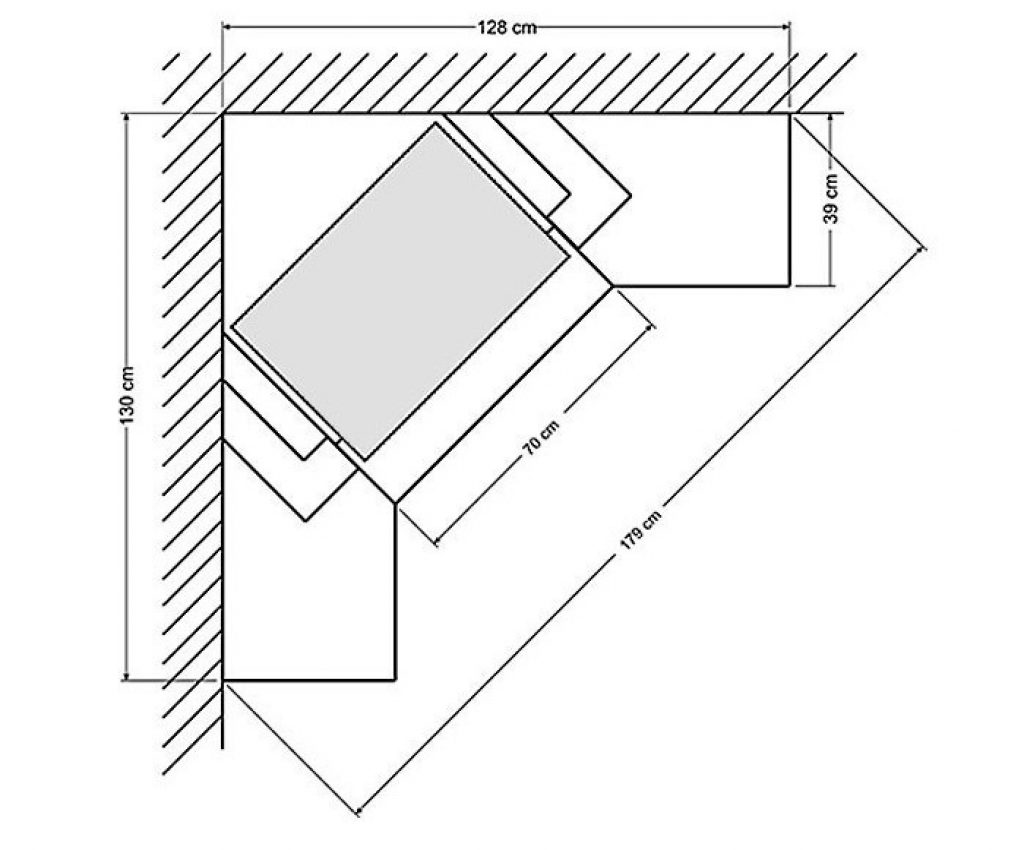
Размеры конструкции
Когда место выбрано, следует определиться с размерами углового камина из гипсокартона и выполнить чертеж будущей конструкции. Необязательно делать декоративный камин по размерам, соответствующим настоящему. Можете воспользоваться чертежом, который мы предлагаем в этой статье или внести в него изменения в соответствии с размерами вашей комнаты. Например, если вы планируете монтировать в портал электрокамин, то, вероятнее всего, размеры ниши придется подкорректировать под параметры аппарата. Важно, чтобы камин получился красивым и гармонирующим с интерьером.
Материалы
Для создания углового камина из гипсокартона вам потребуются следующие материалы:
- гипсокартон;
- профили ПНП;
- дюбель-гвозди и саморезы для сборки каркаса;
- грунтовка;
- стартовая шпаклевка;
- материалы для декорирования (обои, клинкерная плитка, декоративный камень, полиуретановая лепнина и т. д).
Следует учесть, что для портала камина, предусматривающего установку электроустройства, следует использовать только огнеупорный, жаростойкий гипсокартон, например, «Кнауф-Файерборд». Количество материалов вам придется рассчитывать самостоятельно: оно зависит от размеров вашей конструкции.
Сборка каркаса
Можно начинать сборку каркаса для углового камина из гипсокартона, который станет основой конструкции. Пошаговую инструкцию по его монтажу можно представить следующими этапами:
- В соответствии с проектом нанесите разметку на пол и стену. Это контуры будущей вашей конструкции.
- Отметьте на стене контуры топочной камеры. Проводя эту работу, следите за тем, чтобы все линии были строго вертикальными и горизонтальными. Линии должны пересекаться на полу под углом 90 °, если, конечно, ваша конструкция не подразумевает наличие других углов. Такая разметка займет какое-то время, но зато значительно упростит работу в дальнейшем, поэтому не игнорируйте ее.
- По разметке с помощью дюбель-гвоздей на стене необходимо прикрепить ПНП-профили. Таким образом вы соберете основу задней стенки, которая состоит из двух стоек (вертикальных) и двух поперечин, соединяющих их. Учтите, что расстояние от нижней поперечины до пола станет в конечном итоге высотой парапета.
- Закрепите на стене профили, повторяющие контур топочной камеры. Установите на полу профиль по контуру парапета. Затем устанавливаем передние стойки. Глубину камина определяет расстояние от них до задних стоек. Чтобы соединить передние и задние элементы используются горизонтальные поперечины. Не следует забывать о соединении между собой перекладинами передних стоек. Они должны располагаться на том же уровне, что и перекладины задней стенки.
- Далее следует установить стойки парапета и сверху выполнить их обвязку перекладинами. Обратите внимание: они должны располагаться с нижними перекладинами портала на одном уровне.
- Устанавливаем в передней части каркаса стойки топочной камеры, которые с помощью нескольких перекладин соединяем с основными опорами.
- На завершающем этапе монтажа конструкции углового камина из гипсокартона необходимо сделать своды топочной камеры.
- Чтобы профили согнуть аркой, необходимо в их бортиках сделать надрезы с шагом около двух сантиметров.
Итак, сборка каркаса завершена. Если вам кажется, что он получился не столь крепким и жестким, как вы планировали, установите дополнительно ребра жесткости. И еще один совет от специалистов: во время монтажа своими руками углового камина из гипсокартона используйте отвесы и строительный уровень. Стоит отметить, что вместо профиля можно использовать деревянный брус для возведения каркаса. Этапы работ в этом случае не будут отличаться.
Обшивка каркаса
Прежде чем приступить к обшивке камина, необходимо раскроить гипсокартон строго в соответствии с вашим проектом. Чтобы разрезать лист материала вдоль ровной линии, необходимо выполнить следующие работы:
- прижмите правило или длинную линейку к линии разреза листа;
- с помощью острого монтажного ножа разрежьте материал вдоль линейки;
- переломите лист руками и сложите его;
- перережьте гипсокартон по линии сгиба с обратной стороны листа.
Для получения более сложных по форме деталей, например, свода топочной камеры, необходимо нанести разметку на материале. Можно для этой цели использовать миллиметровую бумагу, а затем использовать электролобзик. Когда все детали вырезаны, их остается лишь закрепить на каркасе с помощью обычных саморезов для гипсокартона с интервалом 10-15 см.
Если вы изготавливаете портал для электрокамина, установите его внутрь топочной камеры, чтобы убедиться, что при монтаже не была допущена ошибка.
Монтаж гипсокартона
На стыках листов, которые располагаются в одной плоскости, следует снять небольшую фаску шириной не более 5 мм. Обязательно на стыки наклейте сетку-серпянку, которая способствует их армированию. С помощью малярной кисти необходимо покрыть конструкцию грунтовкой в два слоя. Учтите, что второй слой наносить следует после полного просыхания первого.
Затем стартовой шпаклевкой обрабатываются стыки листов и шляпки саморезов. После этого необходимо зашпаклевать весь портал. После того как шпаклевка застынет, поверхность обрабатывают фуганком, используя сетку P80-P120. Это позволит устранить мелкие изъяны.
Завершая работу, удалите с поверхности конструкции пыль и еще один раз обработайте ее грунтом.
Декорирование
Это, пожалуй, один из самых интересных этапов по созданию своими руками углового камина из гипсокартона, поскольку именно он дает возможность проявить свою фантазию, а огромный выбор отделочных материалов, представленных сегодня на строительном рынке, гарантирует, что она не будет ограничена.
Самый простой и наиболее доступный по стоимости вариант отделки – это обои, имитирующие кирпич или камень. Дизайн угловых каминов из гипсокартона выглядит особенно эффектно, если для облицовки используется клинкерная плитка. Этот материал устойчив к воздействию высоких температур, поэтому его можно без опасений использовать в варианте с электрокамином. Клинкерная плитка внешне напоминает кирпич, причем его цветовая гамма разнообразна, что позволяет применять его при воплощении самых разных дизайнерских решений.
Не менее привлекательно смотрится еще один классический вариант отделки – облицовка поверхности портала декоративным камнем. Как и клинкерная плитка, камень монтируется на обычный плиточный клей.
Белый камин
В интерьере квартиры, оформленной в классическом стиле, прекрасно будет смотреться фальш-камин, окрашенный в белый цвет и дополненный лепниной. Специалисты рекомендуют уделить особое внимание столешнице, от которой во многом зависит общее восприятие портала. Часто ее выполняют под мрамор либо древесину ценных пород. Заказать ее можно отдельно в любой фирме, которая занимается производством мебели. Если вы планируете сделать свой камин максимально аутентичным, закажите красивую кованую решетку для него. Таким образом работа будет завершена, и вы сможете наслаждаться не только стильным элементом интерьера, но и использовать его по прямому назначению (при наличии электрокамина).
Заключение
Изучив рекомендации и инструкции специалистов, каждый сможет украсить свое жилище такой оригинальной конструкцией. Очень важно, что ее создание не займет много времени и не разорит семейный бюджет. Для такого камина не является преградой даже небольшая площадь помещения, поскольку можно сделать довольно компактную модель. Грамотно подойдите к декорированию камина, и тогда он прекрасно впишется в интерьер.
